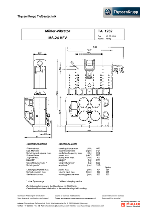
Ficha técnica para Müller MS 24 HFV

modelo 2007-2010 Europe DE, EN

Esta ficha técnica (PDF) se enviará por Email, para ello rogamos nos porporcione su dirección de correo electrónico.

  • Ficha técnica original del fabricante
  • Más información
  • Especificación detallada

*Términos y condiciones

The privacy policy of the company LECTURA GmbH applies, which also contains further information about possibilities for correction, deletion and blocking of my data.

Martillos vibrantes Müller MS 24 HFV



ver especificación detallada